HOME
Information
Portfolio
Pricing
Contact
HOME
Information
Portfolio
Pricing
Contact
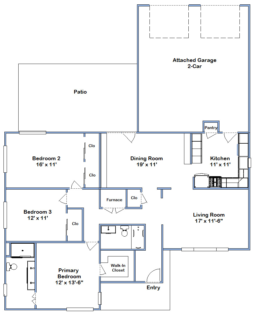
Whitfield
3-Bedroom House for Sale
Virtual Tour & Floorplan
4145 Whitfield, Fort Worth TX
↑
Back to Top